Bismarckstraße 28, 01683 Nossen

Telefon:
Fax:
E-Mail:

035242 68809
035242 688582
kontakt@wvg-nossen.de

objektfoto nossen waldheimer str. 119

Waldheimer Straße 119c

01683 Nossen

ab 01.07.2026

Schicke 3-Raum-Wohnung in ruhiger Lage

wohnungs- und verwaltungsgesellschaft nossen mbh logo
Verfügbar ab:01.07.2026
PLZ/ Ort:01683 Nossen
Objekt:Waldheimer Straße 119c
Etage:2. OG
Baujahr:1976
Wohnfläche:58,20 m²
Zimmer:3
Miete pro m²:5,75 €
Kaltmiete:335,00 €
Nebenkosten:240,00 €
Warmmiete:575,00 €
Kaution:3x Km (1.005,00 €)
Zustand:renoviert
Balkon:nein
Garage/ Stellplatz:nein
Keller/ Boden:ja/ ja
Heizungsart:Gas
Warmwasser:zentral
Energieausweistyp:Verbrauchsausweis
Erstellt/ Gültig:28.04.2021/ 10 Jahre
Endenergieverbrauch:103,89 kWh/(m²·a)

3D Ansicht

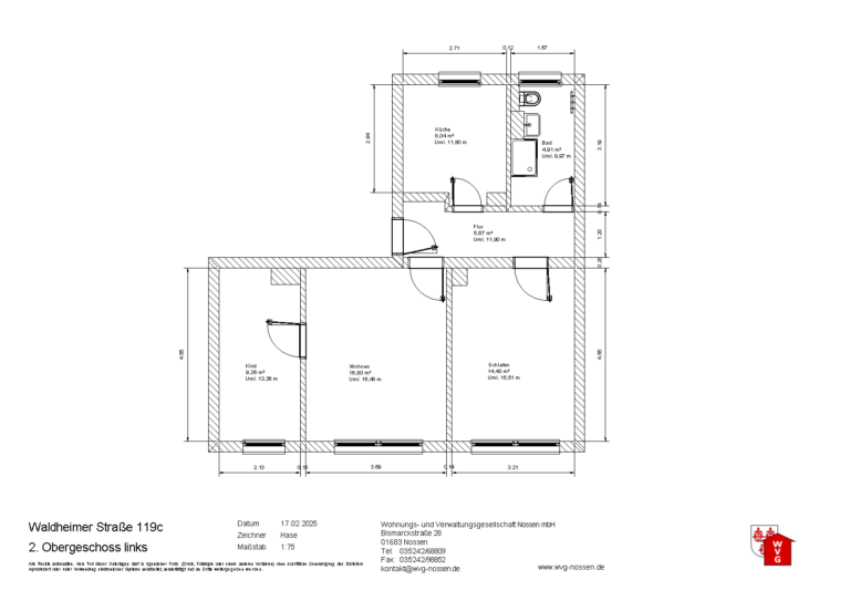
Grundriss

Bilder

Objektbeschreibung

Mietobjekt:

Die renovierte Wohneinheit befindet sich in einem Mehrfamilienhaus in Nossen. Funktionell gestaltet ist die Raumaufteilung. Über den Flur der Wohnung können das Wohnzimmer, die Küche und das Bad erreicht werden. Das Kinderzimmer wird über das Wohnzimmer begangen. Das Tageslichtbad verfügt über eine Dusche. Alle Zimmer sind mit einem hochwertigen Fußbodenbelag ausgestattet. Zur Wohnung gehört ein Kellerabteil.

 

Lage:

Die Stadt Nossen liegt am Autobahndreieck A4/A14. Durch Nossen führen die Bundesstraße 101 und 175. Das schöne Muldental, die verkehrsgünstige Lage und wertvolle bauliche Sehenswürdigkeiten geben der Stadt einen besonderen Reiz.

 

Ausstattung:

Tageslichtbad, Laminat- und Fliesenbelag, Kellerabteil

 

Sonstiges:

Energieverbrauchskennwert (Verbrauchsausweis) 103,89 kWh/(m²a), mit Warmwasser, Baujahr 1976, Befeuerungsart Gas, erstellt 28.04.2021, Gültigkeit 10 Jahre

Besichtigungstermin vereinbaren

Datenschutz-Übersicht

Diese Website verwendet Cookies, damit wir dir die bestmögliche Benutzererfahrung bieten können. Cookie-Informationen werden in deinem Browser gespeichert und führen Funktionen aus, wie das Wiedererkennen von dir, wenn du auf unsere Website zurückkehrst, und hilft unserem Team zu verstehen, welche Abschnitte der Website für dich am interessantesten und nützlichsten sind.

Unbedingt notwendige Cookies

Unbedingt notwendige Cookies sollten jederzeit aktiviert sein, damit wir deine Einstellungen für die Cookie-Einstellungen speichern können.

Marketing

Diese Website verwendet die folgenden zusätzlichen Cookies:

(Liste die Cookies auf, die auf dieser Website verwenden werden.)