Bismarckstraße 28, 01683 Nossen

Telefon:
Fax:
E-Mail:

035242 68809
035242 688582
kontakt@wvg-nossen.de

Talstraße 3

01683 Nossen

voraussichtlich ab 01.01.2026

2-Raum-Wohnung mit schönem Ausblick

wohnungs- und verwaltungsgesellschaft nossen mbh logo
Verfügbar ab:voraussichtlich 01.01.2026
PLZ/ Ort:01683 Nossen
Objekt:Talstraße 3
Etage:1. Obergeschoss
Baujahr:1898
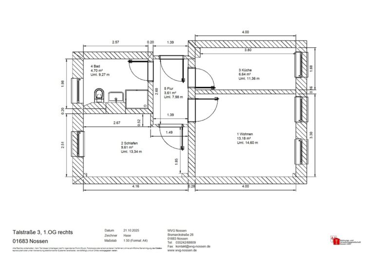
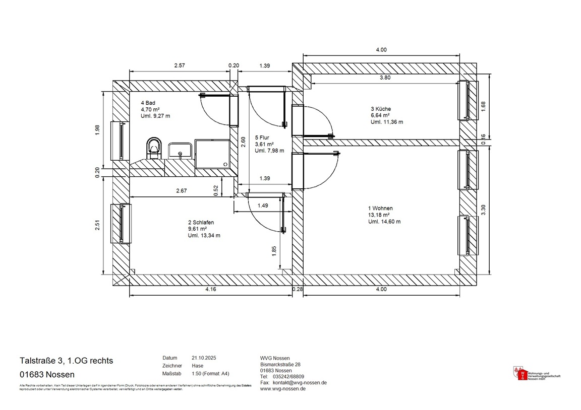
Wohnfläche:42,00 m²
Zimmer:2
Miete pro m²:5,47 €
Kaltmiete:230,00 €
Nebenkosten:165,00 €
Warmmiete:395,00 €
Kaution:3x KM (690,00 €)
Zustand:renoviert
Balkon:nein
Garage/ Stellplatz:nein
Keller/ Boden:Keller
Heizungsart:Gas
Warmwasser:zentral
Energieausweistyp:Verbrauchsausweis
Erstellt/ Gültig:28.04.2021/ 10 Jahre
Endenergieverbrauch:175,32 kWh/(m²a)

3D Ansicht

Grundriss

Objektbeschreibung

Mietobjekt:

Die Wohneinheit befindet sich in einem Mehrfamilienhaus in Nossen, nahe des Ortzentrums. Einkaufmöglichkeiten, Schule und Kindergarten sowie Freizeitmöglichkeiten sind gut fußläufig erreichbar. Die Wohnung wird nach der Fertigstellung der Renovierung mit einem schönen Tageslichtbad, welches über eine Dusche verfügt, übergeben. Vom Flur aus erreichen Sie alle Räume direkt. Zur Wohnung gehört ein Kellerabteil.

 

Lage:

Die Stadt Nossen liegt am Autobahndreieck A4/A14. Durch Nossen führen die Bundesstraße 101 und 175. Das schöne Muldental, die verkehrsgünstige Lage und wertvolle bauliche Sehenswürdigkeiten geben der Stadt einen besonderen Reiz.

 

Ausstattung:

Tageslichtbad mit Dusche, Laminat- und CV-Belag, Kellerabteil

 

Sonstiges:

Energieverbrauchskennwert (Verbrauchsausweis) 175,32 kWh/(m²a), mit Warmwasser, Baujahr 1898, Befeuerungsart Gas, erstellt 28.04.2021, Gültigkeit 10 Jahre

Besichtigungstermin vereinbaren

Icon email marketing newsletter Wohnungs- und Verwaltungsgesellschaft Nossen mbH

Nutzen Sie unseren Benachrichtigungsservice. Sie erfahren als Erster, wenn eine neue Wohnung bei uns Online gestellt wurde.

Datenschutz-Übersicht

Diese Website verwendet Cookies, damit wir dir die bestmögliche Benutzererfahrung bieten können. Cookie-Informationen werden in deinem Browser gespeichert und führen Funktionen aus, wie das Wiedererkennen von dir, wenn du auf unsere Website zurückkehrst, und hilft unserem Team zu verstehen, welche Abschnitte der Website für dich am interessantesten und nützlichsten sind.

Unbedingt notwendige Cookies

Unbedingt notwendige Cookies sollten jederzeit aktiviert sein, damit wir deine Einstellungen für die Cookie-Einstellungen speichern können.

Marketing

Diese Website verwendet die folgenden zusätzlichen Cookies:

(Liste die Cookies auf, die auf dieser Website verwenden werden.)