Bismarckstraße 28, 01683 Nossen

Telefon:
Fax:
E-Mail:

035242 68809
035242 688582
kontakt@wvg-nossen.de

Lindenstraße 25

01683 Nossen

ab 01.06.2026 (ggf. auch früher)

 Gemütliche 2-Raum-Wohnung zum kleinen Preis

wohnungs- und verwaltungsgesellschaft nossen mbh logo
Verfügbar ab:01.06.2026 (ggf. auch früher)
PLZ/ Ort:01683 Nossen
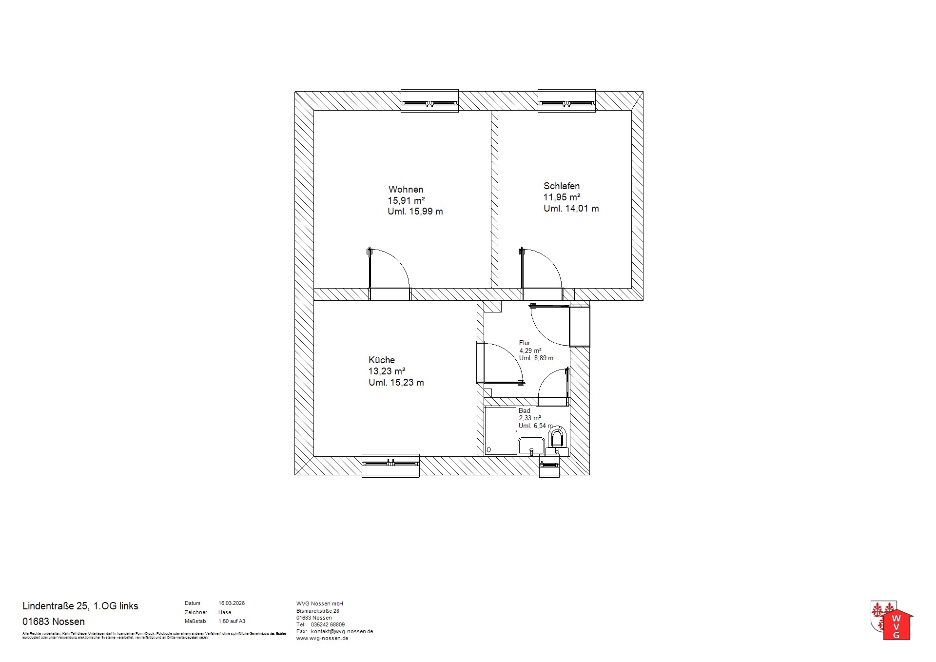
Objekt:Lindenstraße 25
Etage:1. Obergeschoss
Baujahr:1928
Wohnfläche:44,96 m²
Zimmer:2
Miete pro m²:4,89 €
Kaltmiete:220,00 €
Nebenkosten:180,00 €
Warmmiete:400,00 €
Kaution:3x KM (660,00 €)
Zustand:unrenoviert
Balkon:nein
Garage/ Stellplatz:nein
Keller/ Boden:Keller
Heizungsart:Gas
Warmwasser:zentral
Energieausweistyp:Verbrauchsausweis
Erstellt/ Gültig:28.04.2021, 10 Jahre
Endenergieverbrauch:189,07 kWh/(m²a)

3D Ansicht

Grundriss

Objektbeschreibung

Mietobjekt:

Die Wohneinheit befindet sich in einem kleinen Mehrfamilienhaus, nahe des Ortzentrums. Einkaufmöglichkeiten, Schule und Kindergarten sowie Freizeitmöglichkeiten sind gut fußläufig erreichbar. Die Wohnung verfügt über ein Tageslichtbad mit Dusche. Die sehr geräumige Küche ist aktuell noch mit Einbaumöbeln und Geräten ausgestattet, welche vom Vormieter abgekauft werden können. Zur Wohnung gehört ein Kellerabteil.

 

Lage:

Die Stadt Nossen liegt am Autobahndreieck A4/A14. Durch Nossen führen die Bundesstraße 101 und 175. Das schöne Muldental, die verkehrsgünstige Lage und wertvolle bauliche Sehenswürdigkeiten geben der Stadt einen besonderen Reiz.

 

Ausstattung:

Tageslichtbad mit Dusche, Textilbelag, unrenoviert

 

Sonstiges:

Energieverbrauchskennwert (Verbrauchsausweis) 189,07 kWh/(m²a), mit Warmwasser, Baujahr 1928, Befeuerungsart Gas, erstellt 28.04.2021, Gültigkeit 10 Jahre

Besichtigungstermin vereinbaren

Icon email marketing newsletter Wohnungs- und Verwaltungsgesellschaft Nossen mbH

Nutzen Sie unseren Benachrichtigungsservice. Sie erfahren als Erster, wenn eine neue Wohnung bei uns Online gestellt wurde.

Datenschutz-Übersicht

Diese Website verwendet Cookies, damit wir dir die bestmögliche Benutzererfahrung bieten können. Cookie-Informationen werden in deinem Browser gespeichert und führen Funktionen aus, wie das Wiedererkennen von dir, wenn du auf unsere Website zurückkehrst, und hilft unserem Team zu verstehen, welche Abschnitte der Website für dich am interessantesten und nützlichsten sind.

Unbedingt notwendige Cookies

Unbedingt notwendige Cookies sollten jederzeit aktiviert sein, damit wir deine Einstellungen für die Cookie-Einstellungen speichern können.

Marketing

Diese Website verwendet die folgenden zusätzlichen Cookies:

(Liste die Cookies auf, die auf dieser Website verwenden werden.)