Bismarckstraße 28, 01683 Nossen

Telefon:
Fax:
E-Mail:

035242 68809
035242 688582
kontakt@wvg-nossen.de

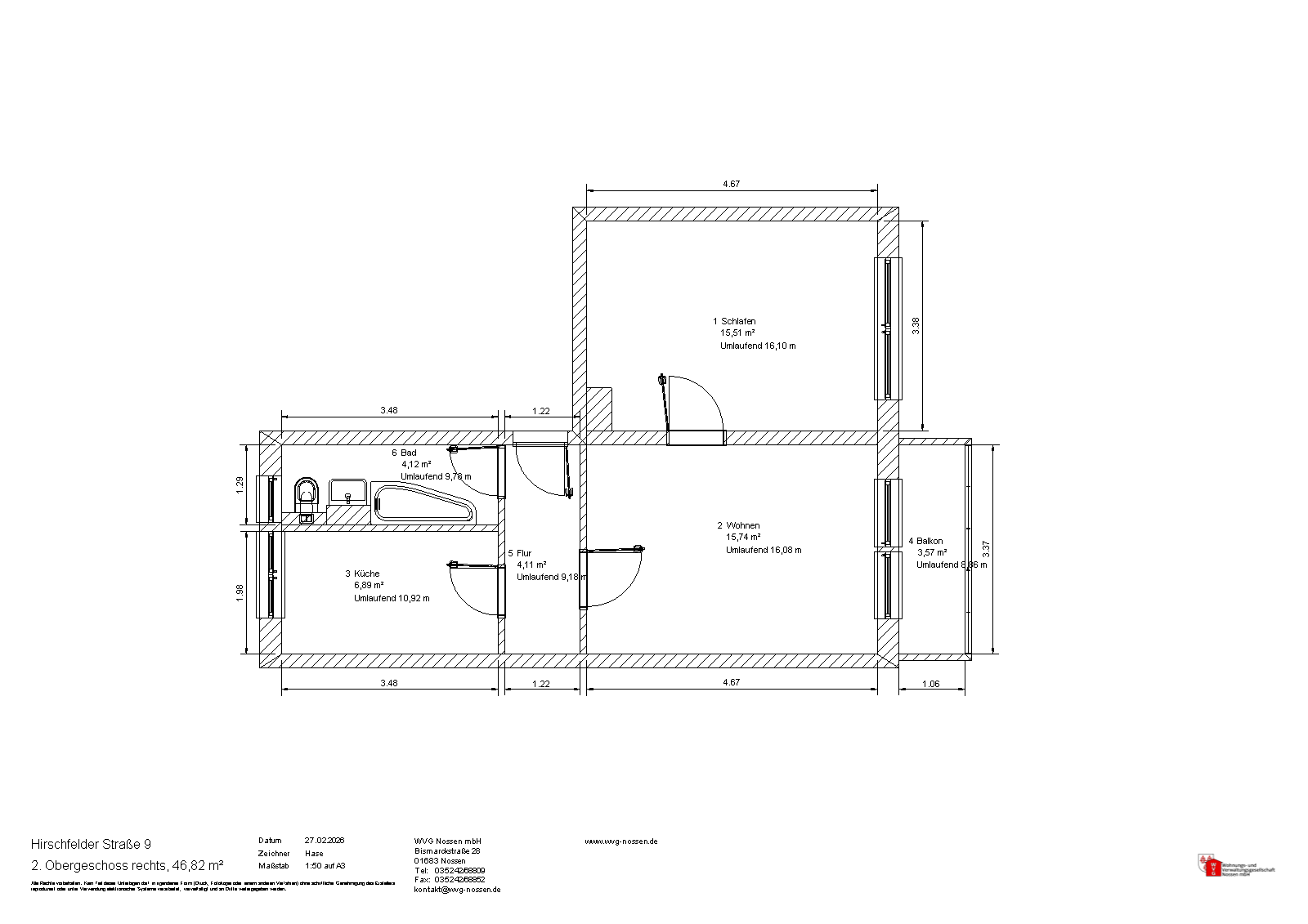
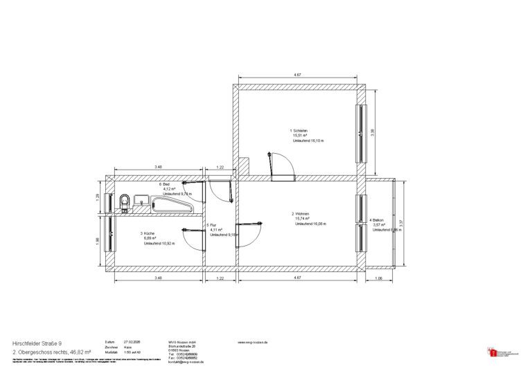
Hirschfelder Straße 9

01683 Nossen

ab 01.04.2026

Geräumige 2-Raum-Wohnung mit Balkon

wohnungs- und verwaltungsgesellschaft nossen mbh logo
Verfügbar ab:01.04.2026
PLZ/ Ort:01683 Nossen/ OT Deutschenbora
Objekt:Hirschfelder Straße 9
Etage:2. Obergeschoss
Baujahr:1967
Wohnfläche:46,82 m²
Zimmer:2
Miete pro m²: 5,98 €
Kaltmiete:280,00 €
Nebenkosten:180,00 €
Warmmiete:460,00 €
Kaution:3x Km (840,00 €)
Zustand:renoviert
Balkon:ja
Garage/ Stellplatz:nein/ nein
Keller/ Boden:ja/ ja
Heizungsart:Gas
Warmwasser:zentral
Energieausweistyp:Verbrauchsausweis
Erstellt/ Gültig:28.04.2021/ 10 Jahre
Endenergieverbrauch:109,96 kWh/(m²·a)

3D Ansicht

Grundriss

Objektbeschreibung

Mietobjekt:

Die renovierte Wohneinheit befindet sich in einem Mehrfamilienhaus in Nossen, im Ortsteil Deutschenbora. Die praktische Einteilung der hellen Zimmer lässt schöne Gestaltungsmöglichkeiten zu. Der große Wohnraum wird wunderbar durch einen Balkon ergänzt. Das Tageslichtbad ist mit einer Badewanne ausgestattet. Ein Kellerabteil vervollständigt diese Wohnung.

 

Lage:

Die Stadt Nossen liegt am Autobahndreieck A4/A14. Durch Nossen führen die Bundesstraße 101 und 175. Das schöne Muldental, die verkehrsgünstige Lage und wertvolle bauliche Sehenswürdigkeiten geben der Stadt einen besonderen Reiz.

 

Ausstattung:

Tageslichtbad mit Badewanne, Fliesen- und Laminatboden, Wohnbereich mit Balkon, Kellerabteil

 

Sonstiges:

Energieverbrauchskennwert (Verbrauchsausweis) 109,96 kWh/(m²a), mit Warmwasser, Baujahr 1967, Befeuerungsart Gas, erstellt 28.04.2021, Gültigkeit 10 Jahre

Besichtigungstermin vereinbaren

Icon email marketing newsletter Wohnungs- und Verwaltungsgesellschaft Nossen mbH

Nutzen Sie unseren Benachrichtigungsservice. Sie erfahren als Erster, wenn eine neue Wohnung bei uns Online gestellt wurde.

Datenschutz-Übersicht

Diese Website verwendet Cookies, damit wir dir die bestmögliche Benutzererfahrung bieten können. Cookie-Informationen werden in deinem Browser gespeichert und führen Funktionen aus, wie das Wiedererkennen von dir, wenn du auf unsere Website zurückkehrst, und hilft unserem Team zu verstehen, welche Abschnitte der Website für dich am interessantesten und nützlichsten sind.

Unbedingt notwendige Cookies

Unbedingt notwendige Cookies sollten jederzeit aktiviert sein, damit wir deine Einstellungen für die Cookie-Einstellungen speichern können.

Marketing

Diese Website verwendet die folgenden zusätzlichen Cookies:

(Liste die Cookies auf, die auf dieser Website verwenden werden.)