Bismarckstraße 28, 01683 Nossen

Telefon:
Fax:
E-Mail:

035242 68809
035242 688582
kontakt@wvg-nossen.de

1645436058925 Wohnungs- und Verwaltungsgesellschaft Nossen mbH

Hermann-Schäffer-Straße 20

01683 Nossen/ OT Raußlitz

ab 01.01.2026

Helle 3-Raum-Wohnung in Raußlitz

wohnungs- und verwaltungsgesellschaft nossen mbh logo
Verfügbar ab:01.01.2026
PLZ/ Ort:01683 Nossen/ OT Raußlitz
Objekt:Hermann-Schäffer-Straße 20
Etage:1. OG
Baujahr:1958
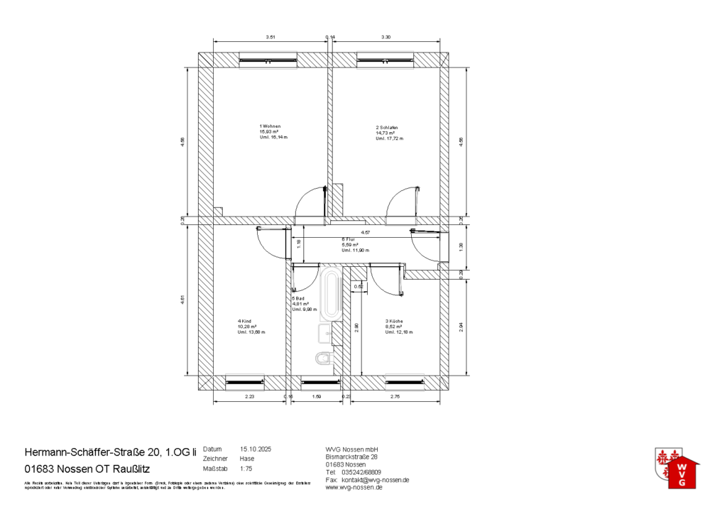
Wohnfläche:61,00 m²
Zimmer:3
Miete pro m²:5,57 €
Kaltmiete:340,00 €
Nebenkosten:180,00 €
Warmmiete:520,00 €
Kaution:3x KM (1020,00 €)
Zustand:renoviert
Balkon:nein
Garage/ Stellplatz:nein
Keller/ Boden:ja
Heizungsart:Öl
Warmwasser:zentral
Energieausweistyp:Verbrauchsausweis
Erstellt/ Gültig27.04.2021
Endenergieverbrauch:69,31 kWh/(m²*a)

3D Ansicht

Grundriss

Objektbeschreibung

Mietobjekt:

Die Wohneinheit befindet sich in einem Mehrfamilienhaus in Nossen, im Ortsteil Raußlitz. Alle Räume sind separat vom Flur aus zu erreichen. Diese praktische Einteilung der hellen Zimmer lässt schöne Gestaltungsmöglichkeiten zu. Die Wohnung verfügt über ein schönes Tageslichtbad mit Badewanne. Die Zimmer sind mit einem Laminat- bzw. Fliesenfußboden ausgestattet. Ein Kellerabteil vervollständigt diese Wohnung.    

 

Lage:

Die Stadt Nossen liegt am Autobahndreieck A4/A14. Durch Nossen führen die Bundesstraße 101 und 175. Der Ortsteil Raußlitz liegt ca. 6 km nördlich von Nossen und etwa 9,5 Kilometer (Luftlinie) südlich von Lommatzsch in der Mitte Sachsens. Die Grundschule ist sehr gut fußläufig zu erreichen.

 

Ausstattung:

Tageslichtbad mit Badewanne, Laminat- und Fliesenbelag

 

Sonstiges:

Energieverbrauchskennwert (Verbrauchsausweis) 69,31 kWh/(m²a), mit Warmwasser, Baujahr 1958, Befeuerungsart Öl, erstellt 27.04.2021, Gültigkeit 10 Jahre

Besichtigungstermin vereinbaren

Icon email marketing newsletter Wohnungs- und Verwaltungsgesellschaft Nossen mbH

Nutzen Sie unseren Benachrichtigungsservice. Sie erfahren als Erster, wenn eine neue Wohnung bei uns Online gestellt wurde.

Datenschutz-Übersicht

Diese Website verwendet Cookies, damit wir dir die bestmögliche Benutzererfahrung bieten können. Cookie-Informationen werden in deinem Browser gespeichert und führen Funktionen aus, wie das Wiedererkennen von dir, wenn du auf unsere Website zurückkehrst, und hilft unserem Team zu verstehen, welche Abschnitte der Website für dich am interessantesten und nützlichsten sind.

Unbedingt notwendige Cookies

Unbedingt notwendige Cookies sollten jederzeit aktiviert sein, damit wir deine Einstellungen für die Cookie-Einstellungen speichern können.

Marketing

Diese Website verwendet die folgenden zusätzlichen Cookies:

(Liste die Cookies auf, die auf dieser Website verwenden werden.)